Kiadó Lakás (téglaépítésű) Székesfehérvár - Várkörút

50 m2Alapterület 1 + 2 Szoba
330 000 Ft /Hó Ár
394208Azonosító
További adatok

Udvari Kilátás

Új Állapot

Tégla Szerkezet

6 m2 Erkély/terasz

Távfűtés egyedi mérővel Fűtés

Összkomfort Komfort

Saját teremgarázshely Parkolás

Emelet 2

Van Lift

Háziállat Igen

Kiváló Tömegközlekedés

Amerikai konyhás

Nincs Kertkapcsolat

2021 Építés éve

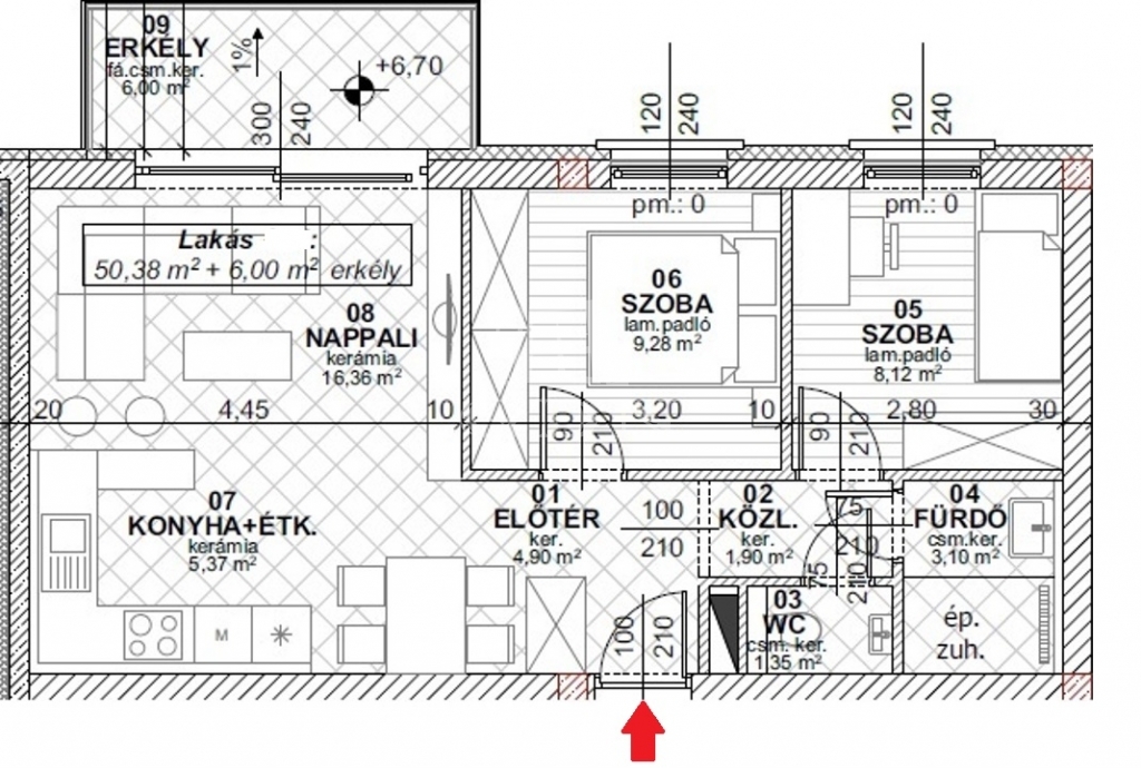
BL-003375. Belvárosban, modern akadálymentes, 2 lifttel ellátott társasházban 50 nm nagyságú, 6 nm-es erkéllyel rendelkező, amerikai konyhás nappali + 2 fél szoba elosztású lakás gépesítve, részben vagy egészben bútorozva (igény szerint), (jelenleg a képeken látható berendezési tárgyak találhatók meg), SMART HOME rendszerrel szerelve, valamint az épület alatt található teremgarázsban 1 autó számára biztosított beálló hellyel együtt hosszútávra kiadó.
A lakásban a hideg és a meleg burkolatok prémium kategóriából lettek választva a hosszútávú időtállóság érdekében.
A beépített bútorok modernek, igényesek, a konyha gépekkel (kombi hűtő, főzőlap, sütő, mikrohullámú sütő, elszívó, mosogatógép, mosógép) felszerelt. A melegvíz ellátást, valamint a padlófűtést a távhő szolgáltató biztosítja, egyedi mérés alapján. A lakás ablakain minőségi motoros működtetésű alumínium redőny és szúnyogháló található. 1 db kistestű háziállat tartása megengedett, a dohányzás a lakáson belül tilos.

Az elhelyezkedését tekintve a város egyik legjobb részén található, séta távolságra elérhető boltok, kereskedelmi egységek, éttermek, szórakozóhely és egyéb más szolgáltatók.

Amennyiben olyan ingatlant keres, ahova csak a személyes tárgyait kell hozni, valamint az első lakója lenne biztos elnyeri a tetszését.

Ingatlanbemutató videó: https://youtu.be/CqvkyqDaFvs

A lakás bérleti díja: 330.000 Ft / hó + rezsi.

A beköltözéshez 2 havi kaució, első havi bérleti díj, közjegyzői nyilatkozat, valamint közvetítői díj megfizetése szükséges.

Ha felkeltette érdeklődését, hívja irodánkat bizalommal, éljen ingyenes, személyre szabott hitelügyintézés szolgáltatásunkkal. Segítünk továbbá adásvételhez szükséges ügyvédi közreműködésben, energetikai tanúsítvány, valamint értékbecslés elkészítésében.

For English details please send us a message or an e-mail, thank you
Berki Katalin

Berki Katalin

Hívjon bizalommal

+36-70-789-Mutasd!

További hirdetéseim

Ingatlaniroda
GDN Ingatlanhálózat - VHL Ingatlaniroda
+36-70-789-1998

Küldjön üzenetet

Visszahívást kérek

Hasonló ingatlanok