Eladó Lakás (téglaépítésű) Székesfehérvár - Móri utca

75 m2Alapterület 1 + 2 Szoba
105 000 000 Ft Ár
390880Azonosító
További adatok

Udvari Kilátás

Újszerű Állapot

Tégla Szerkezet

12 m2 Erkély/terasz

Gáz (cirkó) Fűtés

Összkomfort Komfort

Saját beálló Parkolás

Emelet 1

Nincs Lift

Tömegközlekedés

Amerikai konyhás

Nincs Kertkapcsolat

2019 Építés éve

Közös költség 12 835 Ft

Délkeleti Tájolás

Hitelkalkuláció – a részletekért kattintson valamelyik bank logójára!

L-004692. Modern, értékálló lakás saját tárolóval fedett autó beállóval, Székesfehérvár Felsővárosában – ideális családnak vagy befektetésnek.

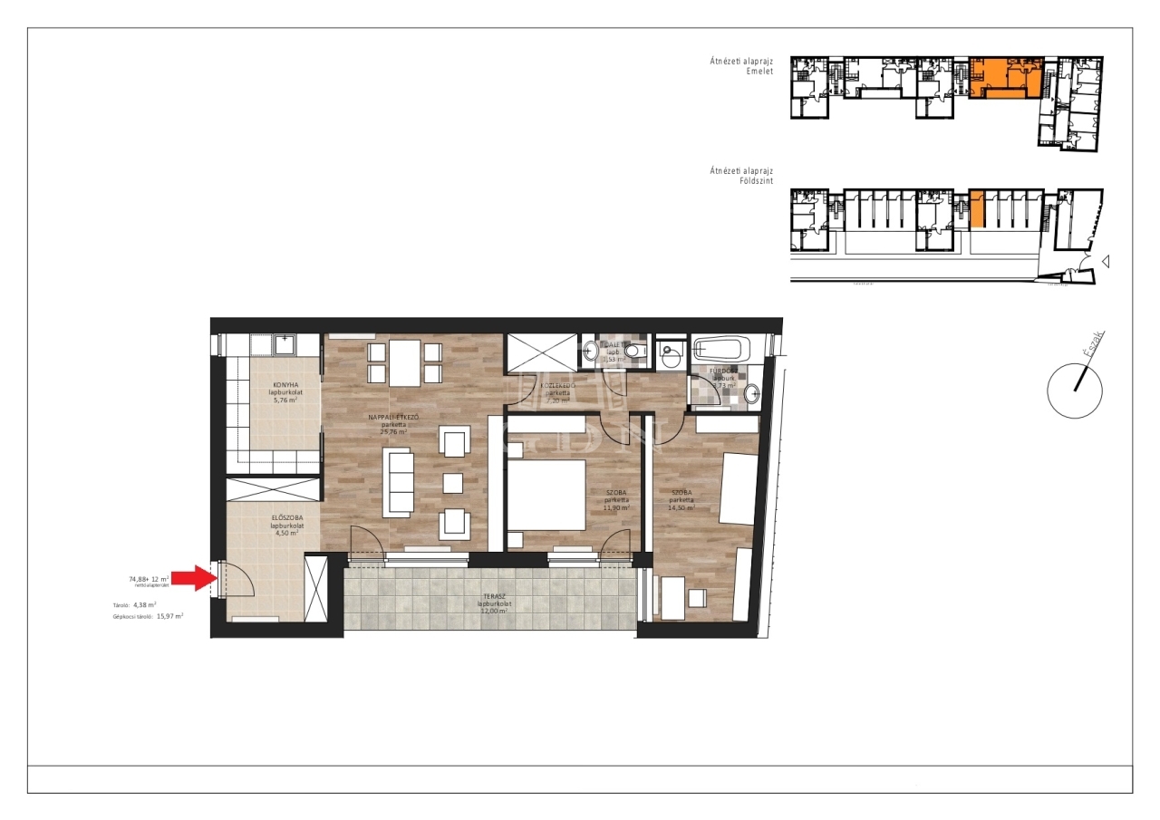
Székesfehérvár kedvelt városrészében, Felsővárosban, a Móri úton kínálunk megvételre egy 2019-ben épült, 11 lakásos társasházban található, kiváló állapotú, jól kiadható és hosszú távon is értékálló lakást.

Az ingatlan főbb jellemzői:

Az ingatlan 74,88 m² hasznos alapterülettel rendelkezik, melyhez egy 12 m²-es, jól használható erkély kapcsolódik. Elrendezése praktikus és keresett: amerikai konyhás nappali + 2 külön nyíló hálószoba, így ideális választás családoknak, illetve bérbeadásra is.

Műszaki tartalom és komfort:

A társasház Porotherm 30-as téglából épült, 10 cm külső hőszigeteléssel, korszerű, energiatakarékos kialakítással. A lakásban háromrétegű nyílászárók találhatók redőnnyel és szúnyoghálóval. A fűtést és a melegvíz-ellátást gázkazán biztosítja radiátoros hőleadással, a nappaliban Gree 3,5 kW-os hűtő-fűtő klíma gondoskodik a komfortérzetről. A fürdőszobában törölközőszárítós radiátor került beépítésre. Az elektromos kapacitás 3×16 Amper, a lakás riasztórendszerrel felszerelt.

Beépített értékek:

A vételár tartalmazza a gépesített, beépített konyhabútort, valamint az egyedileg kialakított gardróbszekrényt, ami azonnali költözést vagy bérbeadást tesz lehetővé további beruházás nélkül.

Parkolás és tárolás:

Az eladási ár része egy 16 m²-es fedett gépkocsibeálló, valamint az ahhoz tartozó 4,38 m²-es saját tároló. A társasház térkövezett belső kocsibehajtóval rendelkezik, továbbá a hátsó, zárt udvarban egy további autó számára is biztosított a parkolás.

Befektetési és családi szempontból is ideális választás:

A fiatal építésű társasház, az alacsony fenntartási költségek, a keresett elrendezés és a komplett felszereltség miatt az ingatlan könnyen és jól kiadható, ugyanakkor kényelmes, hosszú távú otthont is biztosít egy család számára. A környék infrastruktúrája kiváló, a belváros és a főbb közlekedési útvonalak gyorsan elérhetők.

Amennyiben egy stabil értéket képviselő, azonnal hasznosítható vagy költözhető ingatlant keres Székesfehérváron, ez a lakás kiváló lehetőség.

Eladási Irányár: 105 M Ft

Ha felkeltette érdeklődését, hívja irodánkat bizalommal, éljen ingyenes, személyre szabott hitelügyintézés szolgáltatásunkkal. Segítünk továbbá adásvételhez szükséges ügyvédi közreműködésben, energetikai tanúsítvány, valamint értékbecslés elkészítésében.

For English details please send us a message or an e-mail, thank you
Berki Katalin

Berki Katalin

Hívjon bizalommal

+36-70-789-Mutasd!

További hirdetéseim

Ingatlaniroda
GDN Ingatlanhálózat - VHL Ingatlaniroda
+36-70-789-1998

Küldjön üzenetet

Visszahívást kérek

Hasonló ingatlanok