Eladó Ikerház Mogyoród - Borvirág utca

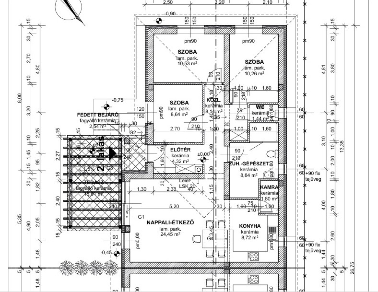
96 m2Alapterület 4 Szoba
94 900 000 Ft Ár
394987Azonosító
További adatok

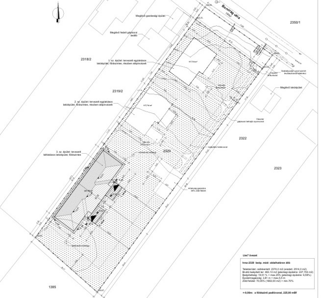
443 m2 Telek

Panoráma Kilátás

Új Állapot

Tégla Szerkezet

17 m2 Erkély/terasz

Hőszivattyú Fűtés

Összkomfort Komfort

Saját beálló Parkolás

Közepes Tömegközlekedés

Amerikai konyhás

Van Kertkapcsolat

2025 Építés éve

Délkeleti Tájolás

Hitelkalkuláció – a részletekért kattintson valamelyik bank logójára!

BOMBA ÁRON MOGYORÓDON ! ! !

CSEND, NYUGALOM, MADÁRCSICSERGÉS...

CSAK 94.900.000 FT ! ! !

3 KÜLÖNNYÍLÓ SZOBA + AMERIKAI KONYHÁS NAPPALI, TERASZ!

BRUTTÓ 105 NM!

A ház 30-as xtherm téglából épült, szigetelése 15cm, Bramac tetőcserép fedéssel.
HŐSZIVATTYÚs fűtési rendszerrel, valamint KLÍMÁval és RIASZTÓval kerül átadásra.

Az ár 2026. április 30-ig történő szerződéskötés esetén érvényes.

Tervezett átadás: 2026. DECEMBER 31.
NEM A KIVITELEZŐTŐL FÜGG, Ő 6 HÓNAP ALATT MEGÉPÍTI!

HITELEZHETŐ, CSOK KÉPES ÉS RUGALMASAN MEGTEKINTHETŐ!

HÍVJON A RÉSZLETEKÉRT, NE MARADJON LE RÓLA!

U.I.: A képek ugyanazon beruházó által készített hasonló ingatlanban készültek! Az alaprajz a valóságnak 100%-ban megfelelő.
Petrován Pál Gyula

Petrován Pál Gyula

Hívjon bizalommal

+36-70-789-Mutasd!

További hirdetéseim

Ingatlaniroda
GDN Ingatlanhálózat - VHL Ingatlaniroda
+36-70-789-1998

Küldjön üzenetet

Visszahívást kérek

Hasonló ingatlanok