Eladó Családi ház Érd - ÉRD - FENYVES PARKVÁROS

140 m2Alapterület 5 Szoba
174 000 000 Ft Ár
392359Azonosító
További adatok

865 m2 Telek

Kertre néző Kilátás

Újszerű Állapot

Tégla Szerkezet

23 m2 Erkély/terasz

Gáz (cirkó) Fűtés

Dupla komfort Komfort

Saját beálló Parkolás

Tömegközlekedés

Amerikai konyhás

Van Kertkapcsolat

2016 Építés éve

Délnyugati Tájolás

Hitelkalkuláció – a részletekért kattintson valamelyik bank logójára!

MODERN OTTHON ÉRD, FENYVES-PARKVÁROSBAN

TÁGAS TEREK,
REMEK ELRENDEZÉS,
KORSZERŰ MŰSZAKI MEGOLDÁSOK,
ÉLHETŐ/ÉLVEZHETŐ KERT JELLEMZI EZT A HÁZAT


KÖRNYÉK:
Érd legkedveltebb városrésze Fenyves-Parkváros. Csendes, családi házas övezet, rendezett utcákkal, szép házakkal és jó szomszédsággal.
Az autópályától kellően távol helyezkedik el ahhoz, hogy a forgalom zaja ne legyen zavaró, ugyanakkor gyorsan elérhető és élvezhető a városközpont minden előnye.

HÁZ:
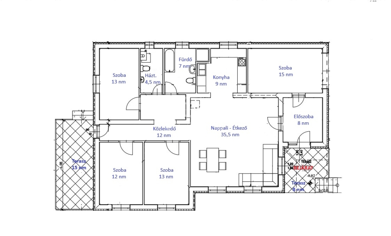
2016-ban épült. Lakótere 129 nm. A ház mérete családokra lett szabva.
Elrendezése az alaprajz szerinti. Amerikai konyhás nappali, 4 hálószoba, 2 fürdőszoba, tágas előszoba és közlekedő található benne.
Hátul, a kert felé pedig egy kényelmes méretű, fedett terasz található.

Falazata 30 cm-es tégla, 10 cm hőszigeteléssel. A födém vasbeton, mely lehetőséget ad a tetőtér beépítésére.

Fűtésről gázcirkó gondoskodik, radiátoros hőleadókkal, emellett klíma és kandalló is rendelkezésre áll.
A 2023-ban telepitett, 6kWh-s napelemes rendszernek köszönhetően a ház vilanyszámlája gyakorlatilag 0 Ft.

A ház energetikai besorolása A++


KERT:
Ez az a kert, ami nem csak szép, hanem valóban használható is.
Az utcafront felől a magas növényzet biztosítja az intimitást, az előkert gondosan parkosított, automata öntözőrendszerrel ellátott.

A hátsó kert sarkában dupla autóbeálló került kialakításra, térkövezett felhajtóval.
A kert parkosított része a pihenést szolgálja. Gyermekeknek játszótér, veteményes a kertészkedni vágyóknak, biztonságos környezet a kutyusoknak.
Tárolóból a kertben sincs hiány, kettő is rendelkezésre áll.


JÖJJÖN EL, NÉZZE MEG AMENNYIBEN EGY SZERETHETŐ, ÉLHETŐ, MODERN OTTHONRA VÁGYIK, JÓ HELYEN.





AMENNYIBEN NEM RENDELKEZIK A TELJES VÉTELÁRRAL, segítünk Önnek megtalálni a legjobb megoldást!
BANKFÜGGETLEN hitelcentrumunk minden elérhető bank és hitelintézet ajánlatát versenyezteti az Ön kedvéért, ráadásul díjmentesen. Önnek nincs más dolga, mint elbeszélgetni munkatársunkkal, aki a hallott információk alapján versenyre hívja a bankokat, hogy Ön hosszú távon is a legjobb konstrukciót kaphassa. A legjobb ajánlatokból végül Ön választhatja ki a nyertest. Munkatársaink sokéves szakmai tapasztalattal várják Önt, előre egyeztetve akár a normál munkaidő után is.
Petrován Pál Gyula

Petrován Pál Gyula

Hívjon bizalommal

+36-70-789-Mutasd!

További hirdetéseim

Ingatlaniroda
GDN Ingatlanhálózat - VHL Ingatlaniroda
+36-70-789-1998

Küldjön üzenetet

Visszahívást kérek

Hasonló ingatlanok