Eladó Lakás (téglaépítésű) Érd - A+os akár 2 Generációs Lakásnak is!

164 m2Alapterület 5 + 2 Szoba
230 000 000 Ft Ár
392979Azonosító
További adatok

170 m2 Telek

Kertre néző Kilátás

Új Állapot

Tégla Szerkezet

26 m2 Erkély/terasz

Megújuló energia Fűtés

Dupla komfort Komfort

Garázs/beálló vásárolható Parkolás

Emelet Földszint

Van Lift

Kiváló Tömegközlekedés

Amerikai konyhás

Van Kertkapcsolat

2025 Építés éve

Keleti Tájolás

Hitelkalkuláció – a részletekért kattintson valamelyik bank logójára!

MAGAS MŰSZAKI TARTALOM, IGÉNYES KIVITELEZÉS, UTOLSÓ FÖLDSZINTI ELADÓ LAKÁS ÉRDLIGET LEGSZEBB RÉSZÉN.

A lakás kiválóan alkalmas nagycsaládosoknak vagy 2 generációs lakásnak ( 2 különálló lakrésszel ), vagy lakás-üzlet vagy lakás-szolgáltatást nyújtó vállalkozásnak is !

Érd központi részén, de mégis kertvárosi utcában csendes környezetben, végig aszfaltúton megközelíthető helyen eladó egy ÚJ ÉPÍTÉSŰ fokozottan energiatakarékos, KERTKAPCSOLATOS földszinti lakás, saját kertrésszel.

A szóban forgó ingatlan egyetlen albetéten szerepel, ugyanakkor a két lakás külön bejárati ajtóval rendelkezik, amelyek az épület belső folyosójáról nyílnak. Az ingatlant kizárólag egyben kívánja értékesíteni a tulajdonos, de amennyiben két vevő egyidejűleg vásárolná meg, az értékesítés megosztási szerződéssel megoldható.

Az „A” jelű lakóegység előtt az utcafronton két-két gépkocsi elhelyezésére alkalmas felszíni parkolóhely került kialakításra. Ezekről a parkolókról – ügyfélforgalom esetén – az ingatlanrészek közvetlenül is megközelíthetők, mivel a teraszajtók bejárati ajtóként funkcionálnak.

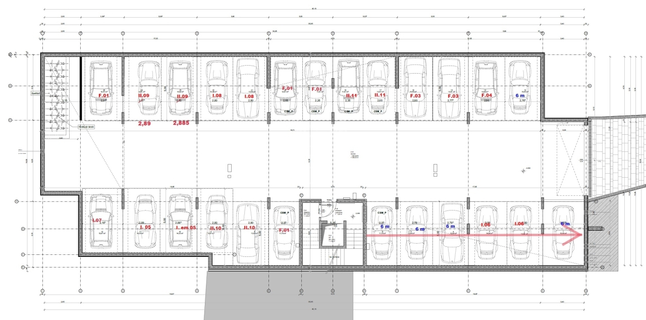
Az épület pincei szintjén található teremgarázsban további parkolóhelyek és tárolók is megvásárolhatók, ezek mind külön albetétként szerepelnek.

A lakás megvásárlásához legalább egy parkolóhely (belső vagy külső) megvásárlása kötelező.

A projekt tervezett átadási ideje: 2026. május vége

Teremgarázsban beállási lehetőség: 9 MFt./db. ( 16 m2/db. ), összesen 2 db. szabad van.
Tároló: 3 MFt./db. ( 7 m2 ), 1 db. szabad tároló van.
Felszíni kocsibeálló a lakás előtt: 7 MFt./db. ( 24 m2/db. ; 2 db. autó számára alkalmas egy beállási lehetőség ), összesen 2 db. szabad felszíni beálló van.

Rövid műszaki ismertető:
Energetikai besorolás: A+

A 4 szintes (P+FSZT.+IEM.+IIEM) társasház 11 db lakást tartalmaz amiből 2 db lakás kétgenerációs kialakítású. A lakások rendelkeznek kert, erkély és tetőterasz valamelyikével. Továbbá lakáson belüli / kívüli tároló lehetőséggel. Akadálymentes bejutás az épületbe.

Felszereltség:
Hanggátló biztonsági lakásbejárati ajtók. A külső nyílászárók műanyag szerkezetűek, bukó - nyíló kivitelben, 3 rétegű hőszigetelésű üvegezéssel. Redőny előkészítés/ beszerelés igény szerint.
Belső burkolás a vevő igénye szerint. Alapkínálatból vagy egyedi igény alapján választható belső ajtók. Lakáselválasztó hang gátló falak kerülnek kialakításra.
Lakásonként egyedi fogyasztásmérők (hidegvíz, melegvíz, fűtés, áram).
Helyiségenként digitálisan vezérelt hőszivattyús hűtés/fűtés.

Extrák:
- Okosotthon alaphálózat, igény szerint bővíthető
- Internetről távolról telefonnal vezérelhető hűtés/fűtés lehetőség
- Lakásonként videokaputelefon
- Közösségi terekben kamerahálózat (CCTV)
- Teremgarázs elektromos gépkocsi töltési lehetőség
- Szintek közötti akadálymentes közlekedés személyfelvonóval
- Teremgarázsban közösségi kerékpár tároló

Gyönyörű csendes környezet, jó levegő - kár lenne kihagyni!
A közelben buszmegálló. Óvoda, iskola, bevásárlási lehetőségek gyalogosan vagy autóval pár perc alatt elérhetők!
A kivitelező Megbízható, sok éves tapasztalattal rendelkezik, aki garantálja a kiváló minőséget garanciával!

Az ingatlan részletes ismertetése és bemutatása előre egyeztetett időpontban lehetséges, melyet nagyon rugalmasan kezelünk, akár HÉTVÉGÉN is.
További kérdéseivel kapcsolatban várom a jelentkezését.
Amennyiben Önnek a vásárláshoz szüksége lenne hitelre, babaváró kölcsönre, lakástakarékra, stb., kezdeményezheti a kapcsolatfelvételt bankfüggetlen hitelügyintézőinkkel, teljesen DÍJMENTESEN.
Közel 25 év szakmai tapasztalattal rendelkezem, eladó vagy kiadó ingatlana értékesítése vagy bérbeadása esetén, készséggel állok az Ön rendelkezésére is, keressen bizalommal.
Berki Katalin

Berki Katalin

Hívjon bizalommal

+36-70-789-Mutasd!

További hirdetéseim

Ingatlaniroda
GDN Ingatlanhálózat - VHL Ingatlaniroda
+36-70-789-1998

Küldjön üzenetet

Visszahívást kérek

Hasonló ingatlanok