Eladó Családi ház Gyál - Venyige köz

118 m2Alapterület 5 Szoba
115 500 000 Ft Ár
382797Azonosító
További adatok

424 m2 Telek

Kertre néző Kilátás

Új Állapot

Tégla Szerkezet

11 m2 Erkély/terasz

Hőszivattyú Fűtés

Dupla komfort Komfort

Saját beálló Parkolás

Tömegközlekedés

Amerikai konyhás

Van Kertkapcsolat

2025 Építés éve

Délkeleti Tájolás

Hitelkalkuláció – a részletekért kattintson valamelyik bank logójára!

Csak az irodánk kínálatában! AZ ELSŐ KÉT VEVŐ SZÁMÁRA BRUTTÓ 3.000.000. FT-OS KONYHABÚTOR HOZZÁJÁRULÁS ÉS MOST 5.000.000. FT-OS KEDVEZMÉNY KERÜL LEVONÁSRA AZ EREDETI ELADÁSI ÁRBÓL ! Eladásra kínálunk Gyál kertvárosi részén Egressy út - Venyige köz környezetében, egy nagyon igényes és korszerű anyagokból épülő "új családi és ikerházas mini lakóparkban", 2 db. ÖNÁLLÓ ÚJ ÉPÍTÉSŰ CSALÁDI HÁZAT, saját kizárólagos használatú telekrészekkel.

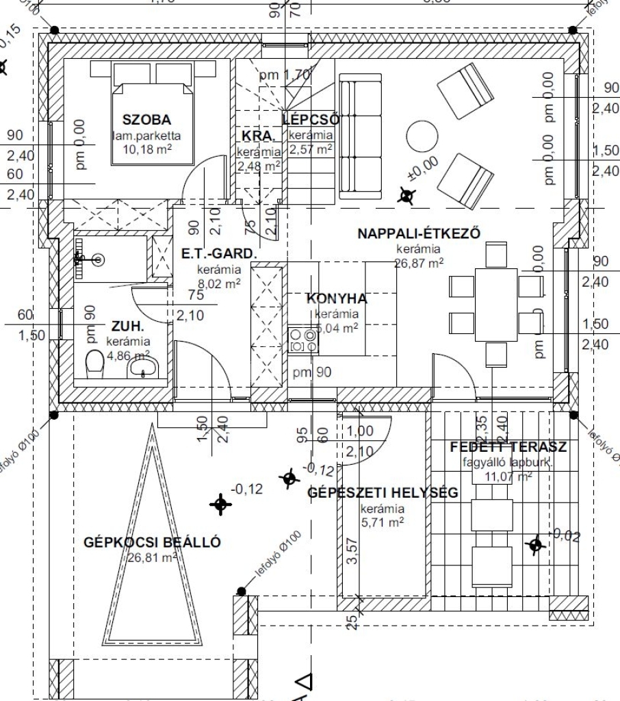
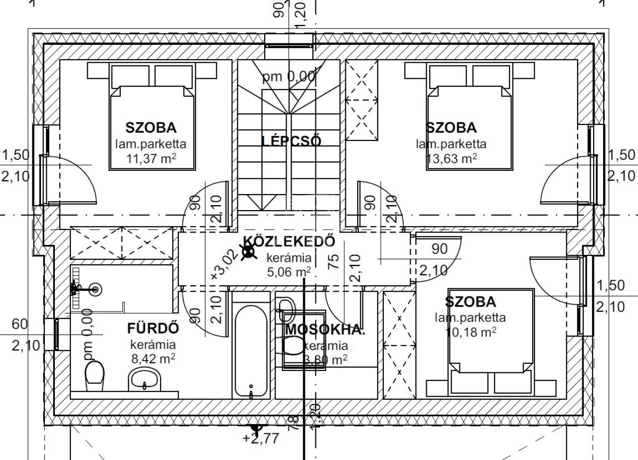
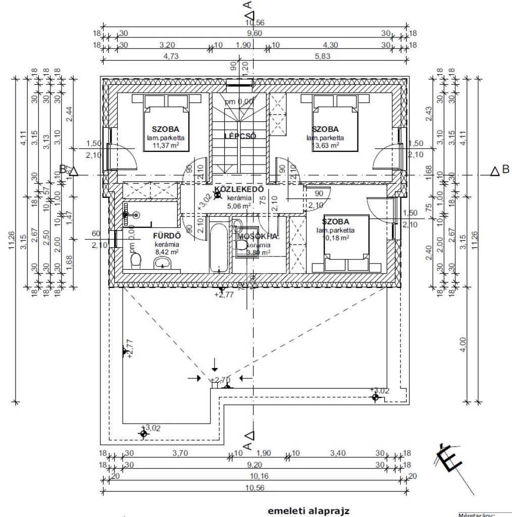
A családi házak egyenként nettó hasznos 118,19 m² lakóterülettel rendelkeznek, amerikai konyhás nappalisak + 4 hálószobásak, dupla fürdőszobásak.
Tartozik hozzájuk pluszban a lakóterületen felül: 11,07 m² FEDETT TERASZ, illetve KOCSIBEÁLLÓ amely 26,81 m² ( ezen értékek a hasznos alapterületbe nincsenek beleszámolva ).

A telek területe amelyre a 2 db. családi ház épül összesen 847 m², a házakhoz tartozó saját kizárólagos használatú leválasztott telekrészek : 423 m²/db.

Fontos kiemelnem, hogy kivitelező/beruházó cég sok-sok éves építőipari tapasztalattal rendelkezik, sok megtekinthető elkészült referencia munkával !

MŰSZAKI TARTALOM ( részlet ) :

- Falazatok: külső-belső teherhordó falak: POROTHERM 30 X-Therm., belső válaszfal: POROTHERM 10 NF

- Hőszigetelés: az épület padlójának aljzatán 15 cm vastag lépésálló polisztirolhab, a közbenső betonfödémekbe 4 cm vastag hő és lépéshang szigetelés készül. A felső záró-födémen 40 cm vastag kőzetgyapot hőszigetelés készül. Szarufa közé, illetve lécezés alá. Külső homlokzat 18 cm vastag Grafitos dryvit hőszigetelő rendszer, Lábazat: 15 cm XPS hőszigetelés, színes, műgyantás vakolat.

- Fűtés-melegvíz: MITSUBISHI vagy BOSCH Elektric Ecoinverter 6 kW-os, 1 fázisú hőszivattyú beépítése a tárólóban kialakított kazánhelyiségben. A használati melegvíz ellátását 1 db HEIZER BSFV 200 literes indirekt, álló, egy hőcserélős tároló biztosítja.
Szintenként 1-1 db rádiófrekvenciás szobai termosztáttal szabályozva! A földszinten és az emeletei helyiségekben a fűtést padlófűtés biztosítja az alábbi helyiségekben (szobákban, nappali-konyha, mosókonyha, fürdők, WC-ék, közlekedők, garázs (temperálva 50%-os tekerés), előszobában.
Helyiségenkenti szabályozás Külön OPCIÓ!

- Hűtés: a hűtést a MITSUBISHI vagy BOSCH Elektric Ecoinverter 6 kW-os levegő-víz, 1 fázisú hőszivattyú biztosítja, amely beépítése a garázsban kialakított kazánhelyiségben történik, + 1 db 100 literes HEIZER puffer tartály a hűtésre.
A hűtés leadását a földszint feletti födém monolit szerkezetébe épített, valamint az emeleti részen a fafödém alá épített gipszkartonba integrált hűtő-fűtő panelok biztosítják.
Szintenként 1-1 db rádiófrekvenciás szobai termosztáttal szabályozva!
Helyiségenkénti szabályozás Külön OPCIÓ!

-Villanyszerelés: 3 fázis: 3 x 16 A mérővel,
H tarifa kialakítása 1 fázis 1 x 32 A

-Burkolat ár: csempe-padló és laminált padló: 10 000 Ft./m²
-Szaniter árak: lista alapján !

A projekt tervezett átadási ideje: 2026. október vége ( közmű-szolgáltatói bekötés alapján )

Az ár tartalmazza a kulcsrakész állapotot, a kocsibeállási lehetőséget és a saját kizárólagos használatú telekrészeket is, MOST BEVEZETŐ ÁRON ELÉRHETŐ: 120,5 millió Ft helyett 115,5 millió Ft, amelyhez PLUSZ 3 millió Ft értékű konyhabútor-hozzájárulás is jár az első 2 vásárló számára !!!

Az ingatlan részletes ismertetése és bemutatása, előre egyeztetett időpontban lehetséges, amelyet nagyon rugalmasan kezelünk, akár HÉTVÉGÉN is.
További kérdéseivel kapcsolatban várom a jelentkezését.
Amennyiben Önnek a vásárláshoz szüksége lenne hitelre, babaváró kölcsönre, lakástakarékra, stb., kezdeményezheti a kapcsolatfelvételt bankfüggetlen hitelügyintézőinkkel, teljesen DÍJMENTESEN.
Közel 25 év szakmai tapasztalattal rendelkezem, eladó vagy kiadó ingatlana értékesítése vagy bérbeadása esetén, készséggel állok az Ön rendelkezésére is, keressen bizalommal.
Berki Katalin

Berki Katalin

Hívjon bizalommal

+36-70-789-Mutasd!

További hirdetéseim

Ingatlaniroda
GDN Ingatlanhálózat - VHL Ingatlaniroda
+36-70-789-1998

Küldjön üzenetet

Visszahívást kérek

Hasonló ingatlanok