Eladó Lakás (téglaépítésű) Budapest XII. kerület - Virányos

223 m2Alapterület 5 Szoba
397 000 000 Ft Ár
394690Azonosító
További adatok

700 m2 Telek

Kertre néző Kilátás

Felújított Állapot

Tégla Szerkezet

100 m2 Erkély/terasz

Gáz (cirkó) Fűtés

Dupla komfort Komfort

Saját garázs Parkolás

Emelet Földszint

Nincs Lift

Tömegközlekedés

Nem Amerikai konyhás

Van Kertkapcsolat

1930 Építés éve

Hitelkalkuláció – a részletekért kattintson valamelyik bank logójára!

Eladásra kínálunk egy különleges, kertkapcsolatos villalakást a XII. kerületben Virányos – Kétvölgy határán.
A polgári jellegű villalakás egy 700 m² kizárólagos használatú, intim, ősfás kerttel rendelkezik.

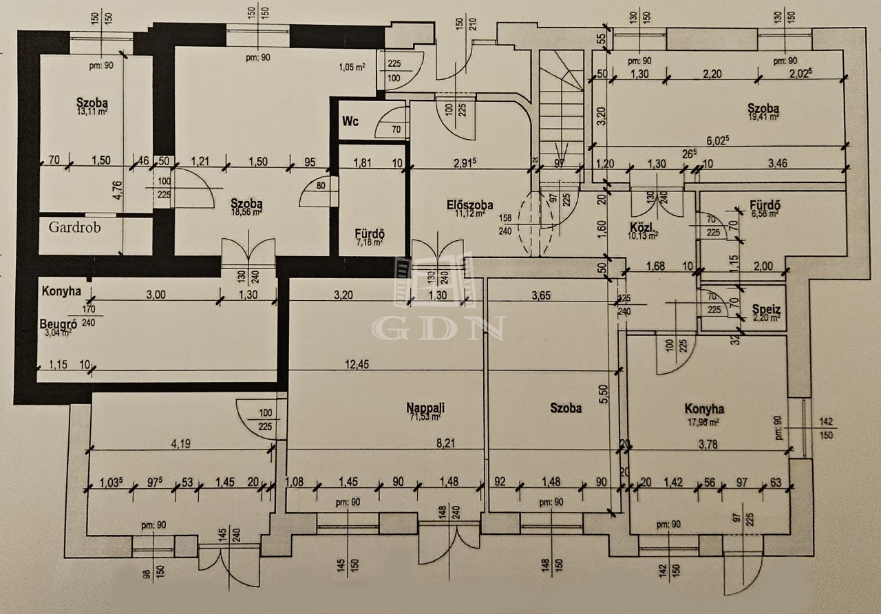
A 223 m² alapterületű ingatlan jelenleg két önálló lakásra van osztva, azonban igény esetén az eredeti, egybenyitott alaprajz könnyen visszaállítható, így a teljes lakótér egy nagyvonalú egységként is használható.

A nagyobb, 165 m² lakás helyiségei:

-71 m² nappali
-27 m² hálószoba
-19 m² dolgozószoba
-18 m² konyha–étkező
-21 m² előszoba
-Kamra
-6,58 m² fürdőszoba WC-vel
-50 m² wellnessrészleg a pincében

A kisebb, 54 m² lakás helyiségei:

-18 m² nappali
-13 m² hálószoba gardróbbal
-16 m² konyha–étkező
-7,18 m² fürdőszoba

Kert és parkolás:

-700 m² kert
-20 m² garázs + további autóbeálló

Az épület jellemzői:

A villa az 1900-as évek elején épült, és az eladásra kínált összesen 223 m² alapterületű ingatlan a lakásai a földszinten helyezkedik el, a wellness részlege pedig a pinceszinten
Mindkét lakás saját bejárattal rendelkezik, és a földszintről közelíthető meg.

A két külön lakás ideális lehet:

- többgenerációs együttéléshez,
- vendéglakás kialakításához,
- vagy kiadás céljára.

Lokáció:

Az ingatlan Virányos egyik csendes, zöldövezeti utcájában található. Autóval és tömegközlekedéssel egyaránt gyorsan elérhető a belváros és a környék fontos pontjai.
A környék nyugodt, biztonságos, kiváló infrastruktúrával rendelkezik.

Amennyiben Önnek a vásárláshoz szüksége lenne hitelre egyedi kedvezménnyel,kezdeményezheti a kapcsolatfelvételt bankfüggetlen hitelügyintézőinkkel, teljesen DÍJMENTESEN.

Az ingatlan részletes ismertetése és bemutatása előre egyeztetett időpontban lehetséges, melyet nagyon rugalmasan kezelünk, akár HÉTVÉGÉN is.

Amennyiben felkeltette az érdeklődését, további kérdéseivel kapcsolatban várom jelentkezését!
Berki Katalin

Berki Katalin

Hívjon bizalommal

+36-70-789-Mutasd!

További hirdetéseim

Ingatlaniroda
GDN Ingatlanhálózat - VHL Ingatlaniroda
+36-70-789-1998

Küldjön üzenetet

Visszahívást kérek

Hasonló ingatlanok